
Irma I. Smith Hall, home of the Department of Religious Studies located on the prominent northeast entrance of 13th Street & Oread Avenue is slated for demolition. The University of Kansas administration will seek permission from the Kansas Board of Regents to demolish the building during the summer or fall of 2023 after only 55 years of service. KU has no stated plans for the site. They plan on relocating faculty and staff to another location.
The Historic Mount Oread Friends along with Lawrence Modern and the Lawrence Preservation Alliance are leading the initiative to save Smith Hall. We welcome others who share our passion, vision and hope. There will be an open house on December 3rd from 2-4 p.m. with a presentation at 3 p.m. All are welcome.
Since Smith Hall cannot speak for itself, we seek to share its history and relevance as a significant, intact example of midcentury modern architecture. Our hope is to raise awareness with the administration at KU, Kansas Board of Regents and the Lawrence community so alternatives can be discussed and implemented instead of demolition. We believe Smith Hall could be eligible for the Lawrence, State and National Historic Registers. Investing funds to address the deferred maintenance that has occurred during KU’s ownership and repurposing is an appropriate course of action.
Smith Hall is familiar to many because of sculptor Elden Tefft’s graceful bronze statue of Moses and a masterful stained-glass representation of the burning bush, pieces intentionally designed to complement the building. The pair are the only three-dimensional representations of the University of Kansas Seal on campus. KU Info describes the Seal, “Moses and the burning bush represent the humble scholar who kneels before the flame, a symbol of knowledge.”
History of Smith Hall
Dr. William Moore, the Dean of the School of Religion in 1960, championed the idea to construct a new building to replace Myers Hall and led a $1 million fundraising effort. $200,000 was raised privately and by affiliated denominations throughout the state, but it was Irma I. Smith, a benefactor with banking and farming interests in Macksville, Kansas, who donated the lion’s share of the funds that achieved the fundraising goal for the School.
Moore was keenly aware of contemporary design trends in architecture and what would attract students. The School hired two prominent regional architects to design the building, Charles Marshall and David Prickett. Marshall held the State Architect of Kansas position from 1945-1952 and had a private architectural practice with Prickett in Topeka from 1952-1982. Following a lengthy construction period that began in 1966, the building was dedicated on October 8, 1967 and named after its main benefactor.



In 1977, the program and faculty of the Kansas School of Religion was absorbed by the University of Kansas Department of Religious Studies and KU entered into a lease agreement for Smith Hall from the Disciples of Christ for $1 a year. For the next 20 years both entities shared building maintenance responsibility, and when the lease expired in July, 1997, a summary and recommendation letter sent to the KU Board of Regents noted that “in general the building is in good shape for its thirty years of use.”
In 1998, the Board of Regents and Legislature approved KU to purchase Smith Hall from the Kansas Bible Chair for $1.1 million with a payment of $55,000 per year for 20 years. A key provision in the agreement: “The University will assume responsibility for interior and exterior maintenance of the building and may make necessary improvements to meet the standard required by the Americans with Disabilities Act (ADA).”
While KU agreed to maintain and make necessary improvements, however, consistent maintenance has not been a priority over the last 24 years. The current solution KU has implemented is to sell or demolish buildings that are underutilized or require updating. The sale and demolition of Stouffer Place, Oldfather Studios, Oliver Hall and now Smith Hall are examples of disregarding historic preservation at KU and are a tremendous waste of material resources.
Smith Hall is a destination point for students and visitors. Timothy Miller, former Professor and Chair of the Department Religious Studies says: “There’s almost not a day that goes by that someone doesn’t come up to ‘Moses’ and the ‘Burning Bush’ stained-glass window to take photos.”



If we look beyond the two works of art and study the building, it reveals remarkable design features and strong craftsmanship. As one of the last mid-century buildings constructed on campus, these features make it an important example of midcentury modern architecture.
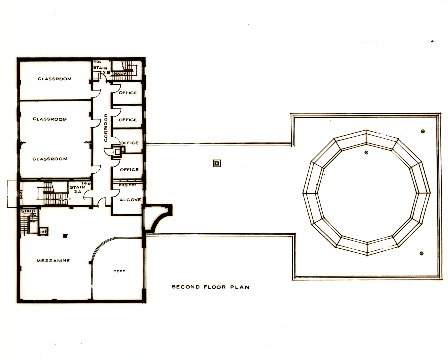
Smith Hall is T-shape in form, a two-story rectangle on the north side east to west. Much of the building on the north and rear east sides are made of tan brick with aluminum casement windows. The northeast section contains classrooms, offices and restrooms.
The north section of the front elevation on Jayhawk Boulevard is comprised of 4’ x 4’ panels of limestone found near Silverdale Kansas, identified by local stone mason, Karl Ramberg. The flat smooth appearance of the panels is rich with the texture of fossils.
This section is where the library, the crown jewel of the building is located. The soaring two-story room features a breathtaking 15’ x 17’ stained glass wall comprised of 16 panels that form the “Burning Bush”. Designed to provide a contemplative atmosphere for study, the sunlight through the stained glass illuminates the library in a wash of colors. In the evening when the interior lights are on, this magnificent dance of colors from the “Burning Bush” can be seen from outdoors.

The building corner stone, where a time capsule was placed during construction, reads ERECTED 1967.
Another striking design feature is the concave, dry-laid limestone tower, noted by Ramberg as a challenging construction and beautiful craftsmanship.



From the main entrance, a corridor with offices connects to the library and an assembly on the south side. The exterior roof cap of this section of the building is made of cast Terrazzo panels, each bearing an embossed cross motif.
The assembly, often referred to as Room 100, could easily be written off as an outdated lecture hall, but there are design details that deserve credit. The room is a dodecagon, a 12-sided form rarely seen in architecture. The seating is circular and several tiers in height forming a conversation pit popular during the late 1960’s, bucking the formal trend of desks in rows. Above, linear light fixtures radiate outward from the center ceiling like rays of the sun, a modern symbolical reference to spiritual light and domes of traditional religious structures. A window wall on the west side connects the space with Jayhawk Boulevard and Tefft’s ‘Moses’.
When “Moses” was united with the “Burning Bush” in 1982 the site was complete. Kim Tefft, Elden Tefft’s son, recalls numerous mockups that were made to unify both works of art with the building. “The location of the sculpture was integral, people were meant to interact with it, not be overwhelmed with it,” Tefft said. “The building had a lot to do with the scale of Moses, that’s why Dad opened it up, to let people experience it.” Eldon Tefft spent 10 years making the Moses sculpture.
To disassemble and relocate the “Burning Bush” and “Moses” removes them from the architectural context that gives them meaning and impact.
“It’s no Frank Lloyd Wright building but few buildings in town fall in that category,” says KU architectural historian Dennis Domer regarding Smith Hall. “It still has merit, especially from the user’s perspective. Many students love this building and are inspired by its spiritual library, dodecagon lecture hall and monumental sculpture of Moses facing the burning bush expressed in a stained-glass window. They see the embodiment of the university’s seal day in and day out so that they know their quest for knowledge is noble and embedded in our history and our university. You can’t ask for much more than that from a university building.”
Call for Action
Smith Hall was funded by private donations from numerous individuals and groups. They likely did not imagine the building would be demolished in 55 years because of KU deferred maintenance.
If KU proceeds with bulldozing Smith Hall, it calls into question what loyalty and commitment means to current and future donors to KU. Can donors be assured their monies to a program or building will be honored in the future? Irma Smith will be rolling over in her grave if the university proceeds with this action.
On July 19, 2022, in response to a Lawrence Preservation Alliance letter expressing concern regarding the recent demolition of the historic 1906 Facilities Building and plans to demolish other historic buildings, Chancellor Girod writes:
“We don’t take decisions to demolish buildings lightly. As we do in each case, we weighed and considered all available alternatives before proceeding with demolition. As you are aware, the university has a limited amount of resources available to devote to maintaining our university facilities. Taking a broad view of the entire historic district, these decisions enable us to continue our longstanding practice of investing in, preserving, and maintaining our most historic buildings to ensure they will last for generations to come.”
The decision to demolish Smith Hall eliminates the opportunity for it to be considered as Girod says, “one of our most historic buildings.” Since it is now more than 50 years old it is eligible for the historic registers and could be repurposed, celebrated and promoted along with the ‘Burning Bush’ and Tefft’s ‘Moses’ to a wider audience of KU, our community and the region.
Wint Winters, recently appointed to the 10-member Kansas Board of Regents, confirmed KU has not yet made a request to demolish Smith Hall; the Board would have to approve the request. Winter states public input is welcome. Letters can be sent to the Regents and testimonial considered. The Board meets monthly.
A link to upcoming meetings and email addresses of Board Members can be found here.
It takes a community to save a building. You are encouraged to attend the open house and write each member of the Kansas Board of Regents and Chancellor Girod opposing the demolition.
—Tom Harper
Chancellor Giord: kuchancellor@ku.edu
Provost Barbara Bichelmeyer: provost@ku.edu
Regent Benson: bbenson@pittsburgareachamber.com
Regent Dicus: JBDKSRegents@gmail.com
Regent Harrison-Lee: KRegentCH@gmail.com
Regent Ice: Carl.Ice@BNSF.com
Regent Kiblinger: regentkiblinger@cox.net
Regent Lane: KsRegentCL@gmail.com
Regent Mendoza: mendoza.diana@usd443.org
Regent Rolph: regentrolph@gmail.com
Regent Winter: wwinter@stevensbrand.com
President Flanders: bflanders@ksbor.org









One Comment
Is anyone preparing to submit a National Register nomination to give the site legal protection? That may be the only practical way to save it.
LikeLike
2 Trackbacks
[…] at 2 p.m., the Lawrence Preservation Alliance, Historic Mount Oread Friends, alumni and professors gathered at Smith Hall to admire the beauty and protest the […]
LikeLike
[…] “Many students love this building and are inspired by its spiritual library, dodecagon lecture hall and monumental sculpture of Moses facing the burning bush expressed in a stained-glass window,” KU architectural historian, Dennis Domer told Lawrence Modern. […]
LikeLike